Beschrijving

Energiezuinig en instapklaar wonen
  
Op een magnifieke locatie in het Betuwse Hellouw staat deze moderne sfeervolle middenwoning, helemaal instapklaar en gereed om er je nieuwe thuis van te maken. De styling kreeg in 2022/23 een complete metamorfose. Modern en stijlvol, helemaal van nu! De nieuwe keuken nodigt uit om te koken en te genieten. De moderne badkamer kreeg een mooie upgrade met een nieuw wastafelmeubel en een bijpassende kast. Door de drie fijne slaapkamers en een verrassend ruime zolder biedt dit huis volop mogelijkheden. Je kunt zelfs één of twee extra kamers creëren, zodat het meegroeit met jouw woonwensen. Dankzij de negen zonnepanelen woon je bovendien energiezuinig. In de achtertuin is het heerlijk vertoeven. Doordat je geen directe achterburen hebt, ervaar je optimale privacy en geniet je van een horizon met groen, bomen en blauwe luchten.
  
Hellouw is een Betuws dorp met charme: omringd door dijken, uiterwaarden en polderlandschap. Een plek waar je geniet van rust, ruimte en volop wandel- en fietsmogelijkheden. Ook woon je hier centraal: de A2, A15 en A27 zijn snel bereikbaar, waardoor steden zoals onder andere Utrecht, Den Bosch en Gorinchem altijd dichtbij zijn. De basisschool, sportvelden en het dorpshuis liggen bovendien op loopafstand.

Indeling

Stap binnen en je voelt direct de fijne ambiance van dit huis. 
 
In 2022/23 kregen de begane grond en eerste verdieping een elegante restyling. Overal ligt eikenlook laminaat, dat warmte en eenheid in het interieur brengt. De wanden zijn afgewerkt met Renovlies behang, en geschilderd in aansprekende tinten, afgewisseld door enkele accentwanden met botanisch behang. Ook de plafonds en het houtwerk zijn opnieuw geschilderd. Een mooi detail dat overal terugkomt, is het zwarte beslag op de binnendeuren, wat het interieur een eigentijdse en luxe uitstraling geeft. 
 
De hal is verzorgd en praktisch ingericht, met aangrenzend meterkast, moderne toiletruimte en de trapopgang naar boven. Het vele glas in de voordeurpui zorgt voor extra lichtinval. De toiletruimte is uitgerust met een wandcloset, een nieuw eikenlook fonteinmeubel en mechanische ventilatie. 
 
Een paneeldeur met veel glas biedt toegang tot de living. Een heerlijk woonvertrek om helemaal tot rust te komen na een drukke dag werken. De royale glaspui en de openslaande tuindeur zorgen voor een aangename lichtinval en een dynamische verbondenheid met buiten. Het raam heeft een automatische raamopener. De trapkast met schapverdeling biedt een praktische opbergplaats voor je proviandvoorraad. 
 
De keuken staat in open verbinding met de woonkamer en is gelegen aan de voorzijde. De keuken is in 2022 nieuw geïnstalleerd en heeft strakke kaderdeurtjes met zwarte grepen. Het werkblad, de plint, de spatwand achter het kookgedeelte en de vensterbank zijn allen uitgevoerd in duurzaam composiet. Je beschikt over een 1,5 spoelbak, inductiekookplaat, afzuigkap, heteluchtoven (met grill en ontdooifunctie), koel-/vriescombinatie, vaatwasmachine, een Le Mans carrouselkast, laden en diverse overige kastruimten. De apparaten zijn van de topmerken Bosch en Siemens. Terwijl je kookt, heb je heerlijk vrij zicht naar buiten.

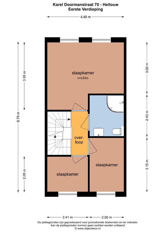
Eerste verdieping

De stijlvolle trapopgang, die begin 2023 opnieuw is geschilderd, brengt je naar de overloop van de eerste verdieping.
   
Aan de overloop grenzen drie stuk voor stuk verzorgde en lichte slaapkamers. Alle slaapkamers zijn voorzien van rolluiken, wat extra comfort en privacy geeft. Ook hier ligt een stijlvolle eikenlook laminaat, die over de gehele verdieping mooi is doorgelegd.
 
De masterbedroom is bijzonder ruim en strekt zich uit over de volledige breedte van het huis. De ruimte is uitermate geschikt om een royale boxspring te plaatsen. De royale garderobekast met hang- en leggedeelten is inclusief. In de achtergevel bevinden zich twee draai-/kiepvensters. Wanneer je naar buiten kijkt, valt direct de grote mate van privacy op. Geen bebouwing achter je perceel, maar een groene haag en bomen van een aangrenzende tuin.
  
De badkamer combineert luxe en functionaliteit. Je kunt heerlijk douchen in de douchecabine met thermostaatkraan. Verfris jezelf aan het eikenlook wastafelmeubel met spiegelkast. De bijpassende hoge kast biedt extra opbergruimte. Zowel het wastafelmeubel als de hoge kast zijn in 2023 nieuw geïnstalleerd. Het wandcloset maakt het sanitair compleet. De designradiator en de mechanische ventilatie zorgen tenslotte voor een aangename temperatuur en een frisse atmosfeer.

Tweede verdieping

Via een vaste trap bereik je de tweede verdieping; een volwaardige woonlaag, die volop ruimte biedt voor eigen invulling. Als vloer ligt hier ook een stijlvolle eikenlook laminaat.
 
 
 
Je vindt hier de omvormer van de zonnepanelen. In het ontwerp is zelfs al rekening gehouden met uitbreiding voor een eventuele thuisaccu. Tevens bevindt hier de CV-ketel, de mechanische ventilatiebox en de wasmachine-/drogeraansluiting.
 
Naast de wasmachine is een ruime functionele kast geplaats. Het Fakro dakvenster zorgt voor daglicht en ventilatie.
 
 
 
Dankzij het ruime vloeroppervlak en de hoogte van de kap kun je hier eenvoudig een extra slaapkamer – of zelfs twee – realiseren. En wil je nóg meer? Dan is een bergzolder ook een optie.
 
Ook is het geen probleem om een dakkapel of extra dakramen te plaatsen, met het behoud van de geplaatste zonnepanelen.

Tuin

De voortuin oogt verzorgd en nodigt uit. Dankzij de strakke aanleg en de groene haagjes krijgt het huis niet alleen een nette uitstraling vanaf de straat, maar ontstaat er ook een stukje beslotenheid. Heerlijk om een gezellig zitje te hebben.
 
Ook achter het huis is het genieten. De achtertuin is onderhoudsvriendelijk ingericht met sierbestrating en biedt ruimte om leuke tuinset te plaatsen. De borders brengen levendigheid en kleur, terwijl de pergola zich bij uitstek leent om bijvoorbeeld een blauweregen te laten groeien voor een weelderige entourage. Privacy wordt gegarandeerd door de houten erfafscheiding. Doordat je geen directe achterburen hebt, ervaar je optimale privacy en geniet je van een horizon met groen, bomen en blauwe luchten. De houten berging met elektra biedt praktische opbergruimte. De achterom zorgt voor een handige ontsluiting op de Karel Doormanstraat.

Bijzonderheden

ALGEMEEN 
 
Energiezuinig als gevolg van de negen zonnepanelen; vijf stuks op de westzijde en vier stuks op de oostzijde. De zonnepanelen liggen op een hoge positie op het dak, waardoor het eventueel aanbrengen van dakkapellen geen probleem is. Met het oog op de eventuele toekomstige aanschaf van een thuisaccu is er alvast een extra zware kabel naar de meterkast gelegd. 
Kwalitatieve keukenapparatuur van “Bosch” en “Siemens”.
 
Kortom de eigenaren hebben niet bespaard op kwaliteit en duurzaamheid, deze keuzes vind je door het hele huis terug. 
 
 
PLUSPUNTEN
 
-Instapklaar, modern en volledig afgewerkt huis
 
-Energiezuinig dankzij 9 zonnepanelen, en programmeerbare thermostaat.
 
-Onderhoudsvriendelijk
 
-Royale, lichte living met openslaande tuindeur
 
-Moderne keuken (eind 2022) met complete uitrusting, en veel kastruimten.
 
-Drie slaapkamers, waarvan één extra ruime masterbedroom
 
-Alle slaapkamers zijn voorzien van rolluiken
 
-Luxe en complete badkamer
 
-Grote zolderverdieping met mogelijkheden voor extra slaapkamers
 
-Tuin met privacy en achterom
 
-Centrale ligging t.o.v. A2, A15 en A27

Kenmerken