| Prijs | € 825.000,- k.k. |
| Type object | Woonhuis, woonboerderij, vrijstaande woning |
| Perceeloppervlakte | 1.486 m² |
| Woonoppervlakte | 291 m² |
| Aanvaarding | In overleg |
| Status | Verkocht |
Herenboerderij in de rust van het centraal gelegen Haaften Soms kom je een plek tegen, die meer is dan alleen een huis. Een plek waar geschiedenis voelbaar is en waar het ritme van het buitenleven je vertraagt. Deze statige woonboerderij uit 1886 ademt historie en biedt tegelijkertijd volop ruimte voor de toekomst. Binnen profiteer je van een dynamische indeling met royale vertrekken, die samen een solide basis vormen voor het realiseren van je woonwensen. De tuin aan de westzijde heeft een parkachtig karakter, met volgroeide bomen die in de zomer voor privacy zorgen en in de winter uitzicht bieden op de dijk. De brede oprit en de in spouw gebouwde dubbele garage bieden niet alleen praktische ruimte, maar ook mogelijkheden. Of je nu droomt van een atelier, werkruimte of gastenverblijf — hier kun je alle kanten op. Deze woonboerderij bevindt zich in het Betuwse dijkdorp Haaften. Gelegen aan de rivier de Waal biedt het een decor van uitgestrekte uiterwaarden en het ongerepte natuurschoon van de Crobsche Waard. Je woont hier in de oude kern, waar historische woonboerderijen gebroederlijk naast elkaar staan. Hier vind je de perfecte balans tussen landelijke rust en een levendige gemeenschap, met basis winkelvoorzieningen binnen handbereik. Ook de geografische ligging is uitstekend. Je woont op slechts enkele autominuten van snelwegen A2 en A15, waardoor zowel Utrecht als Den Bosch binnen 20 à 25 minuten bereikbaar zijn.
Zoals in de Betuwe gebruikelijk is, betreden we deze woonboerderij via de achter-entree. Eenmaal binnen sta je direct in de keuken – het culinaire hart van het huis. De balken van het plafond en de deels zichtbare kapconstructie geven de ruimte een authentiek karakter. Licht stroomt binnen via de ramen in de zijgevel, die bovendien uitzicht bieden op de oprit, zodat je gasten kunt zien naderen. De vloer is afgewerkt met een combinatie van getrommeld marmer en hardsteen, voorzien van comfortabele vloerverwarming — een afwerking die naadloos is doorgetrokken naar de aangrenzende eetkamer. Het keukeninterieur is royaal opgezet met centraal een groot kook-/spoeleiland met 6-pitsgasfornuis, afzuigschouw en veel werkruimte op het blad. De wandopstelling beschikt over een combimagnetron, vaatwasmachine, koelkast en vriezer. Ook aan opbergruimten ontbreekt het niet. Een glazen wand scheidt de keuken van de living. Deze is eventueel eenvoudig te verwijderen, waardoor je meer openheid kunt creëren. De living is verdeeld in een zit- en een eetkamer. De zitkamer ligt aan de tuinzijde en kenmerkt zich door de geweldige open verbinding met de kapconstructie en de vide. Op de vloer ligt een harmonieuze combinatie van eikenhout, getrommeld marmer en hardsteen. De elegante schouw vormt samen met de speksteenkachel (ter overname) een sfeervol middelpunt. De ramen en de schuifpui zorgen ervoor dat het daglicht rijkelijk binnenvalt en creëren een directe verbondenheid met de achtertuin. Een trede hoger ligt de eetkamer. Hier is plaats genoeg om een grote eettafel te plaatsen. Zie je jezelf al zitten? Omringd door familie en genietend van een heerlijke maaltijd? De hal van de zij-entree fungeert thans als extra bergruimte en is ingericht met diepe schappen. Vanzelfsprekend kan deze ruimte ook weer eenvoudig als hal in gebruik worden genomen. Vanuit het eetgedeelte opent de deur naar het voorste deel van het huis. Allereerst bereiken we hier een tussenportaal, waaraan de bijkeuken en badkamer grenzen. De bijkeuken is praktisch ingericht met de wasmachine-/drogeraansluiting en de installatie van de CV en de heteluchtverwarming. Bovendien heb je hier toegang een kelderruimte met twee compartimenten, die onder het voorhuis zijn gelegen. De luxe badkamer is verrassend royaal en slim ingedeeld. Het ligbad ligt verzonken in een plateau met opstapje, wat een bijzonder effect creëert. Een centrale wand verdeelt de ruimte optisch in twee zones, met aan de voorzijde twee wastafels met spiegels en sfeervolle wandarmaturen. Aan de achterzijde bevinden zich, geheel aan het zicht onttrokken, een ruime inloopdouche en een toilet. Het dubbele raam in de zijgevel zorgt voor de natuurlijke lichtinval en de inbouwspots in het gladde stucwerk plafond verzorgen de verlichting. Deze badkamer is zowel vanuit de masterbedroom als vanuit de hal toegankelijk. In het voorhuis liggen twee riante vertrekken, beide in gebruik als slaapkamer en grenzend aan de centrale ontvangsthal van de voordeur. Deze kamers genieten door hun vormgeving en klassieke raaminzetten van een natuurlijke allure. Daarbij bieden ze een prachtig uitzicht op het charmante en rustige straatbeeld van de Herenstraat. In de riante masterbedroom komen rust en verfijning samen. Het rijk gedecoreerde plafond geeft de ruimte een gevoel van grandeur. De twee inbouwkasten zijn ingericht met hang- en leggedeelten en kunnen ruimte bieden aan een flinke garderobe. Dankzij de Panasonic airconditioner (2020), die zowel kan koelen als verwarmen, is het slaapklimaat hier altijd aangenaam. De tweede slaapkamer is eveneens royaal van afmeting. De afwerking is eenvoudiger, maar de ruimte biedt zeker mogelijkheden. Aangrenzend bevinden zich een douchegelegenheid met wastafel en een inloopkast.
Vanuit de living brengt een open trap je naar de verdieping met vide. Hier bereik je een verrassend royale ruimte, die meteen inspireert. Onder de robuuste gebinten van de dakconstructie is nu een royale werkplek ingericht, met ruimte voor drie bureauopstellingen. De open verbinding met de leefruimte beneden creëert een levendige dynamiek en de twee Velux-ramen zorgen voor prettig daglicht. Aangrenzend ligt een doorloopkamer, die op dit moment in gebruik is als thuisbioscoop. Een knusse ruimte onder de kap met twee kleine Velux-vensters met verduisteringsgordijnen. Achter het knieschot is praktische bergruimte gecreëerd, netjes weggewerkt achter schuifdeuren. Direct daarnaast vind je de badkamer, met getrommeld marmer op de vloer, een douchecabine, designvolle wastafel met spiegel en verlichting, wandcloset en een Velux-raam voorzien van luxaflex. Een houten trap leidt drie treden hoger naar de T-vormige overloop van het voorhuis. Aan deze overloop grenzen drie sfeervolle slaapvertrekken en twee inloopkasten. De slaapkamers stralen ieder hun eigen charme uit, met als gemene deler de zichtbare kapconstructie die deels of volledig in het zicht is gelaten. De ramen zorgen voor een prettige lichtinval. De middelste kamer beschikt over een entresol — een speelse en praktische toevoeging, die uitstekend dienst kan doen als extra slaapruimte of bergruimte.
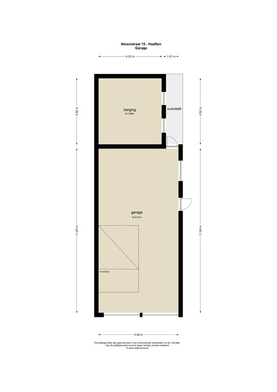
De voorzijde van deze woonboerderij is een plaatje op zichzelf. De karakteristieke gevel met zijn roederamen, statige voordeur en gevellantaarns ademen vakmanschap en historie. Let ook op de levensboom boven de voordeur, die symbool staat voor voorspoed en geluk. De twee leilindes en de weelderige hortensia’s zorgen in het seizoen voor een weelderige entourage. De royale oprit, voorzien van klinkerbestrating, kan plaats bieden aan meerdere auto’s en wordt halverwege gemarkeerd door een afsluitbaar hekwerk. De erfafscheiding van metselwerk met houten schermen waarborgt privacy. De vrijstaande dubbele garage is kwalitatief in spouw gebouwd en geïsoleerd. In de voorgevel prijken twee geïsoleerde overheaddeuren inclusief verlichting, waarvan één deur elektrisch is te bedienen. Binnen vind je een royale open ruimte met een gevlinderde betonvloer, een werkbank met krachtstroom en een bergzolder. Kortom, een ruimte waar je groot kunt denken — of het nu gaat om ambacht, opslag of je eigen atelier. Zowel via de zij- als achterdeur heb je direct toegang tot de tuin. Achter de woning ontvouwt zich een tuin waar sfeer en rust de boventoon voeren. Hier begint het échte buitenleven. Tegen de achtergevel ligt een royaal terras, voorzien van sfeervolle gevelverlichting die het geheel ’s avonds een warme gloed geeft. Vanaf hier kijk je schitterend uit over je riante gazon, dat wordt geflankeerd door een sierlijke border en een viertal amber leibomen, die door de seizoenen heen van groen naar rood kleuren. Dit terwijl de bijgeleverde robotmaaier geruisloos zorgt voor een perfect gemaaid gazon. Verscholen achter de garage bevinden zich een schuur en een houtopslag. De schuur heeft door zijn gevels van potdekselwerk een charmante uitstraling gekregen. Onder de brede dakoverstek creëer je eenvoudig een heerlijke zitplek met uitzicht op korenmolen “De Blauwe Reiger”, die statig boven de dijk uittorent. Het achterste deel van de tuin loopt in L-vorm door achter de tuin van de buren, waardoor deze achterin nog meer breedte krijgt. Prachtig is de omlijsting van volwassen bomen, die de tuin een parkachtige ambiance geven. Kortom, een heerlijk privé-domein om van te genieten.
BIJZONDERHEDEN Energielabel C DE PLUSPUNTEN -Gelegen in de historische dorpskern van Haaften -Karakteristieke Betuwse woonboerderij -Royaal woonoppervlak en dynamische indeling -Ruime oprit en dubbele garage (1999) -Parkachtige tuin met schitterend uitzicht en veel privacy -Gunstig gelegen t.o.v. snelwegen A2 en A15
| Referentienummer | 05993 |
| Vraagprijs | € 825.000,- k.k. |
| Inrichting | Niet gestoffeerd |
| Inrichting | Niet gemeubileerd |
| Status | Verkocht |
| Aanvaarding | In overleg |
| Aangeboden sinds | Dinsdag 6 mei 2025 |
| Laatste wijziging | Zaterdag 28 juni 2025 |
| Type object | Woonhuis, woonboerderij, vrijstaande woning |
| Soort bouw | Bestaande bouw |
| Bouwperiode | 1886 |
| Dakbedekking | Dakpannen Keramisch |
| Type dak | Samengesteld |
| Keurmerken | Energie prestatie advies |
| Isolatievormen | Gedeeltelijk dubbel glas Muurisolatie Spouwmuren Voorzetramen |
| Perceeloppervlakte | 1.486 m² |
| Woonoppervlakte | 291 m² |
| Woonkameroppervlakte | 102,67 m² |
| Keukenoppervlakte | 17,34 m² |
| Inhoud | 1.374 m³ |
| Oppervlakte externe bergruimte | 98 m² |
| Aantal bouwlagen | 2 |
| Aantal kamers | 7 (waarvan 5 slaapkamers) |
| Aantal badkamers | 2 (en 1 apart toilet) |
| Ligging | Aan rustige weg Dichtbij openbaar vervoer Nabij school Nabij snelweg |
| Type | Achtertuin |
| Hoofdtuin | Ja |
| Oriëntering | West |
| Heeft een achterom | Ja |
| Staat | Prachtig aangelegd |
| Energielabel | C |
| CV ketel | ATAG (2024 nog onderhouden) |
| Warmtebron | Gas |
| Bouwjaar | 2018 |
| Combiketel | Ja |
| Eigendom | Eigendom |
| Aantal parkeerplaatsen | 4 |
| Warm water | CV-ketel |
| Verwarmingssysteem | Airconditioning Centrale verwarming Hete luchtverwarming Houtkachel Vloerverwarming (gedeeltelijk) |
| Badkamervoorzieningen Badkamer 1 | Dubbele wastafel Inloopdouche Ligbad Toilet |
| Badkamervoorzieningen Badkamer 2 | Douche Toilet Wastafel |
| Parkeergelegenheid | Vrijstaande stenen garage |
| Heeft airco | Ja |
| Heeft een rookkanaal | Ja |
| Glasvezelaansluiting aanwezig | Ja |
| Tuin aanwezig | Ja |
| Heeft een garage | Ja |
| Beschikt over een internetverbinding | Ja |
| Heeft schuur/berging | Ja |
| Heeft een dakraam | Ja |
| Heeft zonwering | Ja |
| Kadastrale aanduiding | HAAFTEN K 1052 |
| Perceeloppervlakte | 1.447 m² |
| Omvang | Geheel perceel |
| Eigendomsituatie | Eigen grond |
| Kadastrale aanduiding | HAAFTEN K 1054 |
| Perceeloppervlakte | 39 m² |
| Omvang | Geheel perceel |
| Eigendomsituatie | Eigen grond |